Two for the price of one

Updated: February 10, 2012

The inspiration for this design came to me while house hunting. I came across sales notices for various size apartments in a new and trendy condo complex. They were offering 50sqm apartments for X money and 75sqm apartments for 2x. I tried to figure out why a sane person would buy the 75sqm apartment, when financially it made no sense. The more logical solution would be to buy two small and adjacent apartments for the previously mentioned 2x value and combine them into one apartment, getting 100sqm instead of 75sqm for the same price.

I did some checking and you've guessed it, the complex regulations don't allow merging apartments. Tricky business that. However, it did not stop me from thinking up designs for that improved and bigger apartment. You see, if merging two smaller, one-bedroom apartments were possible, you'd be getting two kitchens, two living slash dining rooms, two bedrooms and well ... you get the picture. So, where do you put the front door, how do you arrange the kitchen and what do you place along the windowless interior wall? Here's one suggestion. I hope you like it.

Gallery

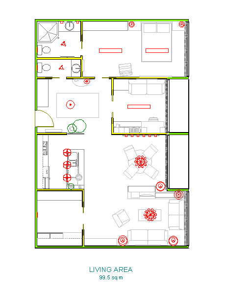
The idea is that all the functions that don't require windows will be placed along the inner windowless wall. So, the bathrooms, utility room and even the kitchen are arranged in a row along that wall. The rooms that require daylight, like the bedrooms and living room are placed along the window wall. You can also see the line that would have divided the two flats to begin with. It still divides the two balconies, just in case the complex were to approve the apartments merging but without affecting the building's facade.

Building plan

Here you can see the design in 3D from three different angles.

Doll House View 1

Doll House View 2

Doll House View 3

The entrance hall is quite big. It is bigger than the second bedroom. However, one of the advantages is that it allows you to walk into the apartment gradually, rather than straight into the kitchen, as would have happened in the original flat. The first door on the left leads into the guest bathroom. The second door on the left leads to the master bedroom and the double doors lead to the second bedroom. To the right, the rest of the apartment.

Hallway 1

Hallway 2

The kitchen is not huge but it boasts all the necessary appliances and has plenty of storage. Since this room is placed along the inner wall, it has no windows, so it was imperative to make it open plan, opposite the dining room.

Kitchen 1

Kitchen 2

Kitchen 3

The living room and dining room are divided by a customized storage unit and shelving, just to give some separation without actually closing up the space with walls. Nevertheless, a sense of additional depth is created in the apartment. It's not just long and narrow rooms anymore, but more of a three-dimensional space.

Living room 1

Living room 2

I placed a larger than life pantry/utility room besides the kitchen, and since this is a windowless room, I added double, frosted-glass doors in it and, naturally, a venting unit. However, this room can be opened up and the space used as an office, or the kitchen could be extended into it, gaining more of that valuable counter space. However, you must admit that there can be no shortage of storage in this design version.

Utility room 1

Utility room 2

The master bedroom is an uncluttered spacious room, where you can relax and enjoy the excellent views from your floor to ceiling window.

Master bedroom 1

Master bedroom 2

The second bedroom is relatively small, so it can be used as an office, a nursery or a guest bedroom.

Guest room 1

Guest room 2

Guest room 3

Conclusion

This is one option to merge two small apartments into a single, bigger flat. There are many other options and design modifications that would suit the specific requirements and needs of different people. In the end, it is the wiser financial option for those of you who have 2.1x to spend, because the merging will cost you some, and can find an apartment building that wouldn't turn their nose at such a suggestion. If you do, then a) good for you, and b) I hope I have inspired you to give it a try.

Have fun!